Chacarita Capital Federal

Chacarita,

FRAGA 200

2
260m2
410m2

Descripción

Venta de Casa en CPUBLICACION DE INMOCLICK.COM.ARhacarita, CapCONTENIDO DE INMOCLICK.COM.ARital Federal
COPIADO DE INMOCLICK.COM.AR

HERMOSA CASA DE
TOMADO DE INMOCLICK.COM.AR5 AMBIENTES (4 AMPLIPUBLICACION DE INMOCLICK.COM.AROS DORMITORIOSVEA ESTA PUBLICACION ACTUALIZADA EN INMOCLICK.COM.AR) EN DOS PSUSTRAIDO DE INMOCLICK.COM.ARLANTAS CON GARAGECOPIADO DE INMOCLICK.COM.AR - QUINCHO Y JARDINSUSTRAIDO DE INMOCLICK.COM.AR

LA CASA ESTA
VEA ESTA PUBLICACION ACTUALIZADA EN INMOCLICK.COM.AR UBICADA SOBRE LA SUSTRAIDO DE INMOCLICK.COM.ARCALLE FRAGA, ENTRE CSUSTRAIDO DE INMOCLICK.COM.ARONCEPCION ARVEA ESTA PUBLICACION ACTUALIZADA EN INMOCLICK.COM.ARENAL Y SANTOCONTENIDO DE INMOCLICK.COM.ARS DUMONT, EN UN HEVEA ESTA PUBLICACION ACTUALIZADA EN INMOCLICK.COM.ARRMOSO ENTORNO RESTOMADO DE INMOCLICK.COM.ARIDENCIAL DEL BARRIOTOMADO DE INMOCLICK.COM.AR DE CHACARITA, DTOMADO DE INMOCLICK.COM.ARE GRAN CRECIMIENTCOPIADO DE INMOCLICK.COM.ARO EN LOS ULTCONTENIDO DE INMOCLICK.COM.ARIMOS AÃ&#1SUSTRAIDO DE INMOCLICK.COM.AR45;OS,  EN ZONVEA ESTA PUBLICACION ACTUALIZADA EN INMOCLICK.COM.ARA TRANQUILA Y CERCONTENIDO DE INMOCLICK.COM.ARCANA A MEDIOCOPIADO DE INMOCLICK.COM.ARS DE TRANSPORTESUSTRAIDO DE INMOCLICK.COM.AR (SUBTE - TREN -CONTENIDO PROPIEDAD DE INMOCLICK.COM.AR COLECTIVOS) 

S
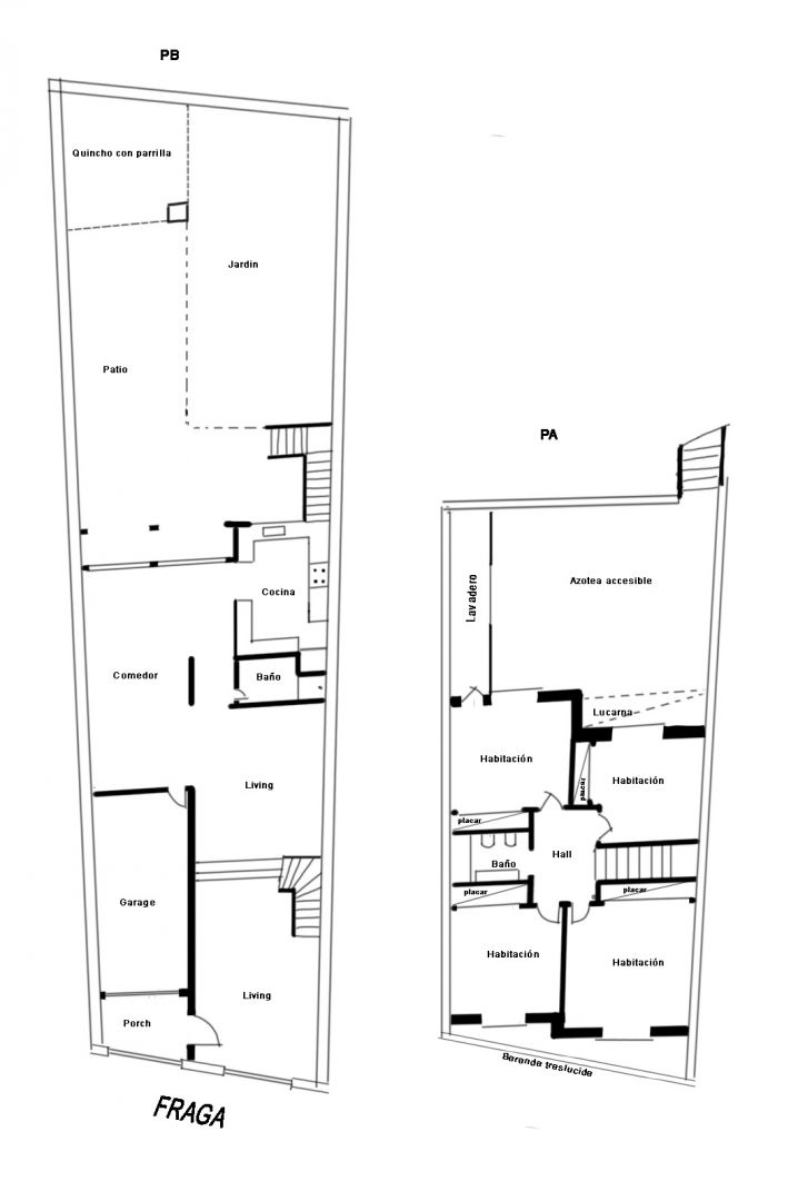
SUSTRAIDO DE INMOCLICK.COM.ARE DISTRIBUYE ENCONTENIDO DE INMOCLICK.COM.AR DOS PLANTAS INGRECOPIADO DE INMOCLICK.COM.ARSANDO EN PN A UN AMCOPIADO DE INMOCLICK.COM.ARPLIO LIVING YVEA ESTA PUBLICACION ACTUALIZADA EN INMOCLICK.COM.AR COMEDOR EN DOS NICONTENIDO DE INMOCLICK.COM.ARVELES Y COMEDOCOPIADO DE INMOCLICK.COM.ARR DIARIO - COCONTENIDO DE INMOCLICK.COM.ARN UNA AMPLIA COCTOMADO DE INMOCLICK.COM.ARINA EQUIPADA Y SUSTRAIDO DE INMOCLICK.COM.ARRECICLADA RCONTENIDO PROPIEDAD DE INMOCLICK.COM.ARECIENTEMENTCOPIADO DE INMOCLICK.COM.ARE - CUENTA CON GVEA ESTA PUBLICACION ACTUALIZADA EN INMOCLICK.COM.ARARAGE AMPLIO PCONTENIDO PROPIEDAD DE INMOCLICK.COM.ARARA UN AUTO - CON COPIADO DE INMOCLICK.COM.ARUN BAÑCONTENIDO DE INMOCLICK.COM.ARO COMPLETO CONTENIDO DE INMOCLICK.COM.ARQUE TAMBIEN STOMADO DE INMOCLICK.COM.ARE ENCUENTRA RECICPUBLICACION DE INMOCLICK.COM.ARLADO - AL CONTTOMADO DE INMOCLICK.COM.ARRAFRENTE NOS ENCONTVEA ESTA PUBLICACION ACTUALIZADA EN INMOCLICK.COM.ARRAMOS CON UNVEA ESTA PUBLICACION ACTUALIZADA EN INMOCLICK.COM.AR PATIO Y JARTOMADO DE INMOCLICK.COM.ARDIN DE APRPUBLICACION DE INMOCLICK.COM.ARX. 13,00 X 9,COPIADO DE INMOCLICK.COM.AR50  SUPER LUMINOCOPIADO DE INMOCLICK.COM.ARSO CON SOL CONTENIDO PROPIEDAD DE INMOCLICK.COM.ARPRACTICAMENTE VEA ESTA PUBLICACION ACTUALIZADA EN INMOCLICK.COM.ARDURANTE TODO EL DIASUSTRAIDO DE INMOCLICK.COM.AR Y UN QUINTOMADO DE INMOCLICK.COM.ARCHO AMPLIO Y EQCOPIADO DE INMOCLICK.COM.ARUIPADO

EN PLANTA AL
SUSTRAIDO DE INMOCLICK.COM.ARTA ENCONTRAMOS UNPUBLICACION DE INMOCLICK.COM.AR COMODO HALCOPIADO DE INMOCLICK.COM.ARL DE DISTRIBCONTENIDO PROPIEDAD DE INMOCLICK.COM.ARUCION QUE NOS LLEVCONTENIDO PROPIEDAD DE INMOCLICK.COM.ARA A 4 DORMITOMADO DE INMOCLICK.COM.ARTORIOS MUYCONTENIDO PROPIEDAD DE INMOCLICK.COM.AR AMPLIOS Y CON TOMADO DE INMOCLICK.COM.ARPLACARD - 2 TOMADO DE INMOCLICK.COM.ARSE ENCUENTSUSTRAIDO DE INMOCLICK.COM.ARRAN AL FRENTSUSTRAIDO DE INMOCLICK.COM.ARE Y TIENEN SALIDCONTENIDO PROPIEDAD DE INMOCLICK.COM.ARA A BALCON CORRIDPUBLICACION DE INMOCLICK.COM.ARO A LA CALLTOMADO DE INMOCLICK.COM.ARE Y LOS OTROS DOSVEA ESTA PUBLICACION ACTUALIZADA EN INMOCLICK.COM.AR HACIA EL COCONTENIDO DE INMOCLICK.COM.ARNTRAFRENTE CON SALIDTOMADO DE INMOCLICK.COM.ARA A UNA TERRAZA DE CONTENIDO PROPIEDAD DE INMOCLICK.COM.ARAPROX. 30M2 A NTOMADO DE INMOCLICK.COM.ARIVEL DE LA SEGCONTENIDO DE INMOCLICK.COM.ARUNDA PLANTA A LAVEA ESTA PUBLICACION ACTUALIZADA EN INMOCLICK.COM.AR CUAL SE PUEDE ACCEDSUSTRAIDO DE INMOCLICK.COM.ARER TAMBIEN COPIADO DE INMOCLICK.COM.ARDESDE EL JACOPIADO DE INMOCLICK.COM.ARRDIN - EN CONTENIDO PROPIEDAD DE INMOCLICK.COM.ARESTA PLANTA CUENTA CONTENIDO PROPIEDAD DE INMOCLICK.COM.ARTAMBIEN CON UN BAÃPUBLICACION DE INMOCLICK.COM.AR‘O COCONTENIDO PROPIEDAD DE INMOCLICK.COM.ARMPLETO TAMBIEN RECITOMADO DE INMOCLICK.COM.ARCLADO ADEMAS TOMADO DE INMOCLICK.COM.ARDE LAVADERO / BAULERSUSTRAIDO DE INMOCLICK.COM.ARA.

LA CONSTRUCCION
SUSTRAIDO DE INMOCLICK.COM.AR ES MUY SOLTOMADO DE INMOCLICK.COM.ARIDA Y SE ENTOMADO DE INMOCLICK.COM.ARCUENTRA MUY BSUSTRAIDO DE INMOCLICK.COM.ARIEN MANTENIDA,VEA ESTA PUBLICACION ACTUALIZADA EN INMOCLICK.COM.AR CON SUS BAÃ&#145CONTENIDO PROPIEDAD DE INMOCLICK.COM.AR;OS Y COCINPUBLICACION DE INMOCLICK.COM.ARA RECICLADOCONTENIDO PROPIEDAD DE INMOCLICK.COM.ARS ASI COMO SU ISUSTRAIDO DE INMOCLICK.COM.ARNSTALACION ELECTOMADO DE INMOCLICK.COM.ARTRICA E INSTALVEA ESTA PUBLICACION ACTUALIZADA EN INMOCLICK.COM.ARACIONES DE AGVEA ESTA PUBLICACION ACTUALIZADA EN INMOCLICK.COM.ARUA Y GAS. CONTENIDO DE INMOCLICK.COM.AR   

UNA CASA
SUSTRAIDO DE INMOCLICK.COM.AR EN MUY BUEN ESPUBLICACION DE INMOCLICK.COM.ARTADO Y CONTOMADO DE INMOCLICK.COM.ARSERVACION, CON AMPCONTENIDO DE INMOCLICK.COM.ARLIOS AMBIENTES, LSUSTRAIDO DE INMOCLICK.COM.ARUMINOSIDAD Y SOL. PUBLICACION DE INMOCLICK.COM.AREL ENTORNO ES MUYVEA ESTA PUBLICACION ACTUALIZADA EN INMOCLICK.COM.AR TRANQUILO, SIENDPUBLICACION DE INMOCLICK.COM.ARO ZONA DE PRODUCTSUSTRAIDO DE INMOCLICK.COM.ARORAS Y CONVIERTIENDCOPIADO DE INMOCLICK.COM.AROSE EN LOS UCONTENIDO DE INMOCLICK.COM.ARLTIMOS AÑOS ECOPIADO DE INMOCLICK.COM.ARN UN POLO GASTRONOMISUSTRAIDO DE INMOCLICK.COM.ARCO. 

Las medida
CONTENIDO DE INMOCLICK.COM.ARs y superficies CONTENIDO DE INMOCLICK.COM.ARindicados son SUSTRAIDO DE INMOCLICK.COM.ARaproximados yPUBLICACION DE INMOCLICK.COM.AR solo a títulPUBLICACION DE INMOCLICK.COM.ARo informatiVEA ESTA PUBLICACION ACTUALIZADA EN INMOCLICK.COM.ARvo.

Estela DONO
TOMADO DE INMOCLICK.COM.ARFRIO Propiedades -VEA ESTA PUBLICACION ACTUALIZADA EN INMOCLICK.COM.AR Av. Federico LacrCOPIADO DE INMOCLICK.COM.ARoze 2909 CABA // HoTOMADO DE INMOCLICK.COM.ARrarios de atenciVEA ESTA PUBLICACION ACTUALIZADA EN INMOCLICK.COM.ARón: Lun a ViCONTENIDO DE INMOCLICK.COM.ARe de 10 a PUBLICACION DE INMOCLICK.COM.AR13hs y 15 a 19hsCOPIADO DE INMOCLICK.COM.AR / Sab de 10 CONTENIDO DE INMOCLICK.COM.ARa 13hs





VEA ESTA PUBLICACION ACTUALIZADA EN INMOCLICK.COM.AR


XINTEL (EDP-
CONTENIDO DE INMOCLICK.COM.AREDP-2266)SUSTRAIDO DE INMOCLICK.COM.AR


Datos de la propiedad

  • ID#
    167097-1483
  • Tipo de construcción
    Casa
  • Condición
    Venta
  • Superficie Total m2
    410
  • Cochera
    Garage/Cochera
  • Superficie Cubierta m2
    260
  • Baños
    2
  • Plantas

Ubicación

FRAGA 200

Avisos similares