Palermo Capital Federal

HUMBOLDT 1900

3
4
205m2
252m2

Descripción

Corredor ReVEA ESTA PUBLICACION ACTUALIZADA EN INMOCLICK.COM.ARsponsable SiCONTENIDO DE INMOCLICK.COM.ARlvia VincenCONTENIDO DE INMOCLICK.COM.ARzini CPI 8405 CMCPVEA ESTA PUBLICACION ACTUALIZADA EN INMOCLICK.COM.ARDJLM 1052 -
Contac
COPIADO DE INMOCLICK.COM.ARto Romina GlassSUSTRAIDO DE INMOCLICK.COM.ARerman - MLS ID CONTENIDO DE INMOCLICK.COM.AR421351006-60PUBLICACION DE INMOCLICK.COM.AR

INCREIBLE PH EN EL
COPIADO DE INMOCLICK.COM.AR CORAZÓN DE PALERMO.CONTENIDO DE INMOCLICK.COM.AR 3 PISOS EN ESQUINTOMADO DE INMOCLICK.COM.ARA CON ENTRADA INDEPESUSTRAIDO DE INMOCLICK.COM.ARNDIENTE SUPER CONTENIDO DE INMOCLICK.COM.ARLUMINOSO ENCONTENIDO DE INMOCLICK.COM.AR EXCELENTE ESTADCOPIADO DE INMOCLICK.COM.ARO.
Al encon
CONTENIDO DE INMOCLICK.COM.ARtrarse en uCOPIADO DE INMOCLICK.COM.ARna esquina todos suCONTENIDO DE INMOCLICK.COM.ARs ambientes dan al TOMADO DE INMOCLICK.COM.ARfrente lo que le briCONTENIDO DE INMOCLICK.COM.ARnda una gran lumiTOMADO DE INMOCLICK.COM.ARnosidad y muy buenaVEA ESTA PUBLICACION ACTUALIZADA EN INMOCLICK.COM.AR ventilación
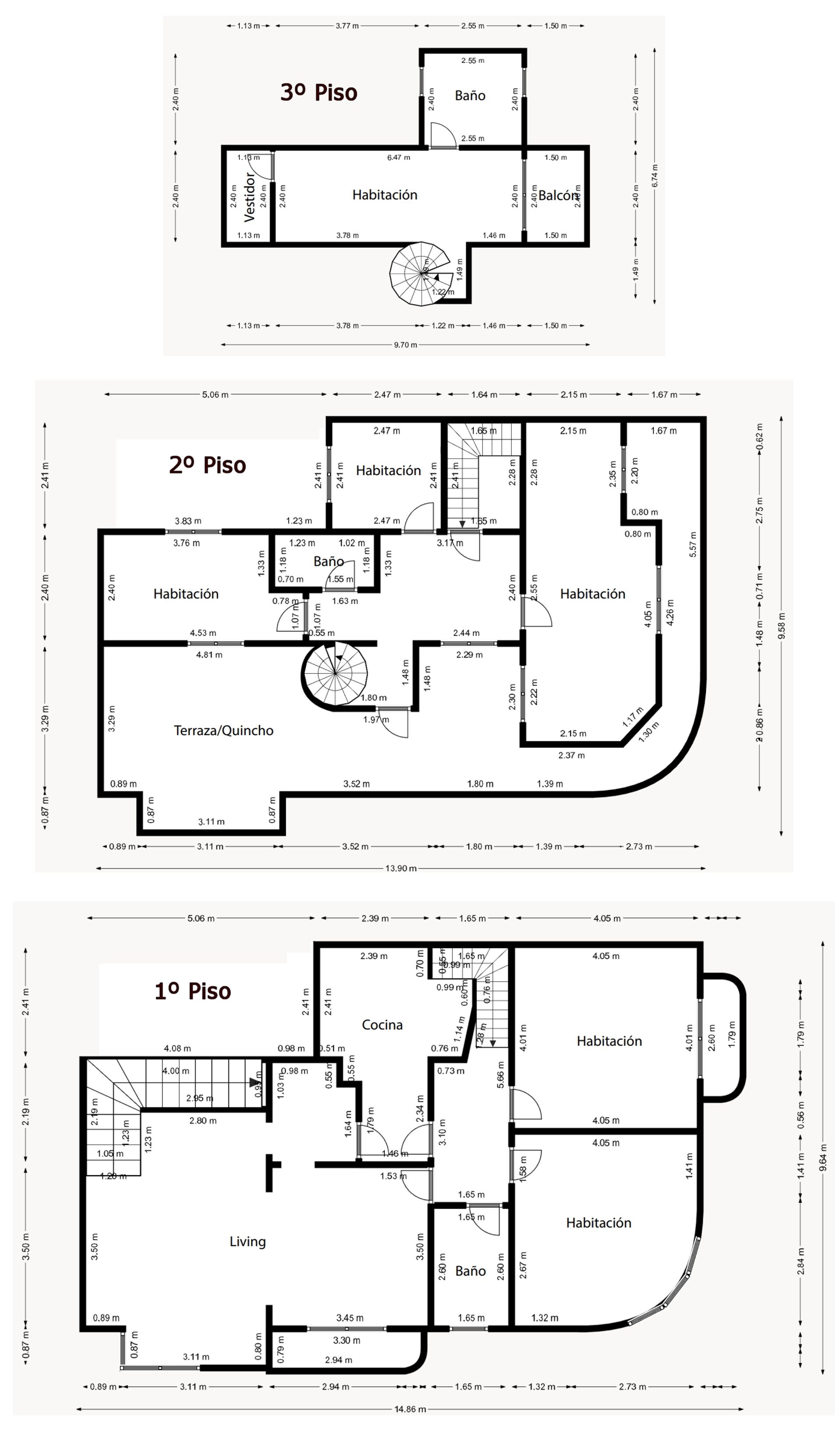
1er Pl
CONTENIDO DE INMOCLICK.COM.ARanta
Amplio
TOMADO DE INMOCLICK.COM.AR living comedTOMADO DE INMOCLICK.COM.ARor compartimeTOMADO DE INMOCLICK.COM.ARntado con ventaTOMADO DE INMOCLICK.COM.ARnales al frentCOPIADO DE INMOCLICK.COM.ARe pisos de maderaPUBLICACION DE INMOCLICK.COM.AR aire acondicPUBLICACION DE INMOCLICK.COM.ARionado friocaloCONTENIDO PROPIEDAD DE INMOCLICK.COM.ARr y tiro balanVEA ESTA PUBLICACION ACTUALIZADA EN INMOCLICK.COM.ARceado.
Habita
CONTENIDO PROPIEDAD DE INMOCLICK.COM.ARción de muy bueCONTENIDO DE INMOCLICK.COM.ARnas dimensioVEA ESTA PUBLICACION ACTUALIZADA EN INMOCLICK.COM.ARnes con pisos de madCONTENIDO DE INMOCLICK.COM.ARera y ventana eSUSTRAIDO DE INMOCLICK.COM.ARn la esquina aiCONTENIDO DE INMOCLICK.COM.ARre acondicionado COPIADO DE INMOCLICK.COM.ARfriocalor y tiro bCONTENIDO PROPIEDAD DE INMOCLICK.COM.ARalanceado
Hab
PUBLICACION DE INMOCLICK.COM.ARitación con SUSTRAIDO DE INMOCLICK.COM.ARpequeño balcón COPIADO DE INMOCLICK.COM.ARal frente y pisos dVEA ESTA PUBLICACION ACTUALIZADA EN INMOCLICK.COM.ARe madera aire aconPUBLICACION DE INMOCLICK.COM.ARdicionado friocaloCONTENIDO PROPIEDAD DE INMOCLICK.COM.ARr y tiro balanceadCONTENIDO DE INMOCLICK.COM.ARo
Baño completo
CONTENIDO PROPIEDAD DE INMOCLICK.COM.ARcon buena ventilacCONTENIDO PROPIEDAD DE INMOCLICK.COM.ARión
Cocina
COPIADO DE INMOCLICK.COM.AR comedor con mucho PUBLICACION DE INMOCLICK.COM.ARespacio de guardadTOMADO DE INMOCLICK.COM.ARo y conexión parCOPIADO DE INMOCLICK.COM.ARa lavarropas

2da
CONTENIDO DE INMOCLICK.COM.AR Planta
Habita
TOMADO DE INMOCLICK.COM.ARción con placard COPIADO DE INMOCLICK.COM.ARy dos ventanas una aTOMADO DE INMOCLICK.COM.ARl pulmón y otra a laCONTENIDO PROPIEDAD DE INMOCLICK.COM.AR terraza
Habitació
COPIADO DE INMOCLICK.COM.ARn mas pequeña con vCOPIADO DE INMOCLICK.COM.ARentana al TOMADO DE INMOCLICK.COM.ARpulmon
Habitación
CONTENIDO PROPIEDAD DE INMOCLICK.COM.ARmuy amplia que actuaCONTENIDO PROPIEDAD DE INMOCLICK.COM.ARlmente se usa cCOPIADO DE INMOCLICK.COM.ARomo escritorio y TOMADO DE INMOCLICK.COM.ARespacio de TOMADO DE INMOCLICK.COM.ARtrabajo con ventanaPUBLICACION DE INMOCLICK.COM.ARles a la terCOPIADO DE INMOCLICK.COM.ARraza aire acondicioCONTENIDO PROPIEDAD DE INMOCLICK.COM.ARnado friocalor y tVEA ESTA PUBLICACION ACTUALIZADA EN INMOCLICK.COM.ARiro balanceado
Ba
VEA ESTA PUBLICACION ACTUALIZADA EN INMOCLICK.COM.ARño completo
Her
TOMADO DE INMOCLICK.COM.ARmosa terraza toda laCONTENIDO DE INMOCLICK.COM.AR esquina con parrilVEA ESTA PUBLICACION ACTUALIZADA EN INMOCLICK.COM.ARla.

3er planta
SUSTRAIDO DE INMOCLICK.COM.AR
Gran dormi
VEA ESTA PUBLICACION ACTUALIZADA EN INMOCLICK.COM.ARtorio con vestCOPIADO DE INMOCLICK.COM.ARidor aire aconVEA ESTA PUBLICACION ACTUALIZADA EN INMOCLICK.COM.ARdicionado TOMADO DE INMOCLICK.COM.ARfriocalor y tiro baCOPIADO DE INMOCLICK.COM.ARlanceado
Baño
SUSTRAIDO DE INMOCLICK.COM.ARen suite con bañeSUSTRAIDO DE INMOCLICK.COM.ARra redonda
Balcón
COPIADO DE INMOCLICK.COM.ARaterrazado

O
SUSTRAIDO DE INMOCLICK.COM.ARPCIONAL COCHERASUSTRAIDO DE INMOCLICK.COM.AR EN LA MISMA CUADRA VEA ESTA PUBLICACION ACTUALIZADA EN INMOCLICK.COM.ARde muy cómodo accesoPUBLICACION DE INMOCLICK.COM.AR

Contactate para c
COPIADO DE INMOCLICK.COM.ARoncertar una visitVEA ESTA PUBLICACION ACTUALIZADA EN INMOCLICK.COM.ARa personalCONTENIDO DE INMOCLICK.COM.ARizada a estCONTENIDO PROPIEDAD DE INMOCLICK.COM.ARa propiedad! Si neSUSTRAIDO DE INMOCLICK.COM.ARcesitas VENDER PARCOPIADO DE INMOCLICK.COM.ARA COMPRAR no dudPUBLICACION DE INMOCLICK.COM.ARes en consultarnoCONTENIDO PROPIEDAD DE INMOCLICK.COM.ARs. ¡NosotrCOPIADO DE INMOCLICK.COM.ARos podemos ayCONTENIDO PROPIEDAD DE INMOCLICK.COM.ARudarte a realiCONTENIDO PROPIEDAD DE INMOCLICK.COM.ARzar la operaciCOPIADO DE INMOCLICK.COM.ARón simultáTOMADO DE INMOCLICK.COM.ARneamente!

Se deja
SUSTRAIDO DE INMOCLICK.COM.AR constancia que loTOMADO DE INMOCLICK.COM.ARs datos de superficiCONTENIDO PROPIEDAD DE INMOCLICK.COM.ARes consignCONTENIDO PROPIEDAD DE INMOCLICK.COM.ARados son aprCONTENIDO DE INMOCLICK.COM.ARoximados y los exactVEA ESTA PUBLICACION ACTUALIZADA EN INMOCLICK.COM.ARos surgirán PUBLICACION DE INMOCLICK.COM.ARde la escriturSUSTRAIDO DE INMOCLICK.COM.ARa traslativa de VEA ESTA PUBLICACION ACTUALIZADA EN INMOCLICK.COM.ARdominio

Las visi
CONTENIDO PROPIEDAD DE INMOCLICK.COM.ARtas son exclusTOMADO DE INMOCLICK.COM.ARivas con perCONTENIDO DE INMOCLICK.COM.ARsonal de la fSUSTRAIDO DE INMOCLICK.COM.ARirmas y se coordinanCOPIADO DE INMOCLICK.COM.AR con anticipaciSUSTRAIDO DE INMOCLICK.COM.ARón.
Por normas d
PUBLICACION DE INMOCLICK.COM.ARe seguridaTOMADO DE INMOCLICK.COM.ARd solicitamosSUSTRAIDO DE INMOCLICK.COM.AR nombre completo DNVEA ESTA PUBLICACION ACTUALIZADA EN INMOCLICK.COM.ARI teléfonoTOMADO DE INMOCLICK.COM.AR y mail de contaCONTENIDO DE INMOCLICK.COM.ARcto.

Obte
CONTENIDO DE INMOCLICK.COM.ARné hasta unTOMADO DE INMOCLICK.COM.AR 30 de finaPUBLICACION DE INMOCLICK.COM.ARnciación simPUBLICACION DE INMOCLICK.COM.ARulá tu préstamo ingrTOMADO DE INMOCLICK.COM.AResando a www.lendar.COPIADO DE INMOCLICK.COM.ARcom.ar ExclusivoCONTENIDO PROPIEDAD DE INMOCLICK.COM.AR para clientes REMACONTENIDO DE INMOCLICK.COM.ARX

VINCASA SA
SUSTRAIDO DE INMOCLICK.COM.ARU Silvia VinTOMADO DE INMOCLICK.COM.ARcenzini CUCICBA 8405PUBLICACION DE INMOCLICK.COM.AR CMCPDJLM 1052 TOMADO DE INMOCLICK.COM.ARFolio 151 deVEA ESTA PUBLICACION ACTUALIZADA EN INMOCLICK.COM.ARl tomo II CUITCONTENIDO PROPIEDAD DE INMOCLICK.COM.AR 30 ######## -1 CONTENIDO DE INMOCLICK.COM.AREn cumplimiCONTENIDO PROPIEDAD DE INMOCLICK.COM.ARento de la Ley VEA ESTA PUBLICACION ACTUALIZADA EN INMOCLICK.COM.AR2340 CUCICBA Ley 10CONTENIDO DE INMOCLICK.COM.AR.973 de la ProPUBLICACION DE INMOCLICK.COM.ARv.Bs.As. Ley NacCONTENIDO PROPIEDAD DE INMOCLICK.COM.ARional 25.028 Ley VEA ESTA PUBLICACION ACTUALIZADA EN INMOCLICK.COM.AR22.802 de LVEA ESTA PUBLICACION ACTUALIZADA EN INMOCLICK.COM.ARealtad ComerciCONTENIDO PROPIEDAD DE INMOCLICK.COM.ARal Ley 24.24PUBLICACION DE INMOCLICK.COM.AR0 de Defensa TOMADO DE INMOCLICK.COM.ARal Consumidor lCOPIADO DE INMOCLICK.COM.ARas normas del SUSTRAIDO DE INMOCLICK.COM.ARCódigo Civil y CSUSTRAIDO DE INMOCLICK.COM.ARomercial de la NaciTOMADO DE INMOCLICK.COM.ARón y ConstitucionalVEA ESTA PUBLICACION ACTUALIZADA EN INMOCLICK.COM.ARes los agenVEA ESTA PUBLICACION ACTUALIZADA EN INMOCLICK.COM.ARtes NO ejercen el SUSTRAIDO DE INMOCLICK.COM.ARcorretaje inmobiliVEA ESTA PUBLICACION ACTUALIZADA EN INMOCLICK.COM.ARario. Todas las opeSUSTRAIDO DE INMOCLICK.COM.ARraciones inmobiliarSUSTRAIDO DE INMOCLICK.COM.ARias son objetoCOPIADO DE INMOCLICK.COM.AR de intermCONTENIDO PROPIEDAD DE INMOCLICK.COM.ARediación yCONTENIDO PROPIEDAD DE INMOCLICK.COM.AR conclusión TOMADO DE INMOCLICK.COM.ARpor parte de los SUSTRAIDO DE INMOCLICK.COM.ARmartilleros y coCONTENIDO PROPIEDAD DE INMOCLICK.COM.ARrredores colegiVEA ESTA PUBLICACION ACTUALIZADA EN INMOCLICK.COM.ARados cuyos dPUBLICACION DE INMOCLICK.COM.ARatos se exSUSTRAIDO DE INMOCLICK.COM.ARhiben debajo delTOMADO DE INMOCLICK.COM.AR nombre de la inmCONTENIDO DE INMOCLICK.COM.ARobiliaria.

NO DU
TOMADO DE INMOCLICK.COM.ARDES EN VISITAR ESTCOPIADO DE INMOCLICK.COM.ARE INCREIBLE PH

RAU
SUSTRAIDO DE INMOCLICK.COM.ARS.R.L. no ejerceCONTENIDO DE INMOCLICK.COM.AR el corretaje inmobCONTENIDO PROPIEDAD DE INMOCLICK.COM.ARiliario. El presentPUBLICACION DE INMOCLICK.COM.ARe sitio web es uCONTENIDO PROPIEDAD DE INMOCLICK.COM.ARna plataformCOPIADO DE INMOCLICK.COM.ARa en donde cadCONTENIDO PROPIEDAD DE INMOCLICK.COM.ARa oficina inmobiliPUBLICACION DE INMOCLICK.COM.ARaria independiPUBLICACION DE INMOCLICK.COM.ARente que conCONTENIDO DE INMOCLICK.COM.ARtrata los serviPUBLICACION DE INMOCLICK.COM.ARcios RE/MAX puede CONTENIDO DE INMOCLICK.COM.ARpublicar las PUBLICACION DE INMOCLICK.COM.ARpropiedades a su cVEA ESTA PUBLICACION ACTUALIZADA EN INMOCLICK.COM.ARargo. Cada oficina eCOPIADO DE INMOCLICK.COM.ARs de propiedad y gesCONTENIDO PROPIEDAD DE INMOCLICK.COM.ARtión independiente,VEA ESTA PUBLICACION ACTUALIZADA EN INMOCLICK.COM.AR por lo que RAU SCONTENIDO DE INMOCLICK.COM.AR.R.L. no intervieCONTENIDO PROPIEDAD DE INMOCLICK.COM.ARne en los datos de CONTENIDO PROPIEDAD DE INMOCLICK.COM.ARla publicación, en TOMADO DE INMOCLICK.COM.ARla operación iVEA ESTA PUBLICACION ACTUALIZADA EN INMOCLICK.COM.ARnmobiliaria, ni en SUSTRAIDO DE INMOCLICK.COM.ARla confecciSUSTRAIDO DE INMOCLICK.COM.ARón y/o firma del COPIADO DE INMOCLICK.COM.ARboleto de compravenCONTENIDO DE INMOCLICK.COM.ARta y/o escritura y/PUBLICACION DE INMOCLICK.COM.ARo contrato COPIADO DE INMOCLICK.COM.ARde alquiler. En cumPUBLICACION DE INMOCLICK.COM.ARplimiento de las lPUBLICACION DE INMOCLICK.COM.AReyes vigentes VEA ESTA PUBLICACION ACTUALIZADA EN INMOCLICK.COM.ARque regulan el correTOMADO DE INMOCLICK.COM.ARtaje inmobiliario,PUBLICACION DE INMOCLICK.COM.AR Ley NacionCONTENIDO PROPIEDAD DE INMOCLICK.COM.ARal 25.028, Ley 22.8PUBLICACION DE INMOCLICK.COM.AR02 de LealtaPUBLICACION DE INMOCLICK.COM.ARd Comercial, Ley TOMADO DE INMOCLICK.COM.AR24.240 de DeCONTENIDO PROPIEDAD DE INMOCLICK.COM.ARfensa al ConsumiTOMADO DE INMOCLICK.COM.ARdor, las normas CONTENIDO DE INMOCLICK.COM.ARdel Código Civil y CONTENIDO PROPIEDAD DE INMOCLICK.COM.ARComercial de CONTENIDO PROPIEDAD DE INMOCLICK.COM.ARla Nación CONTENIDO DE INMOCLICK.COM.ARy ConstituSUSTRAIDO DE INMOCLICK.COM.ARcionales, los aCOPIADO DE INMOCLICK.COM.ARgentes/gestores NTOMADO DE INMOCLICK.COM.ARO ejercen elCONTENIDO DE INMOCLICK.COM.AR corretaje inCONTENIDO DE INMOCLICK.COM.ARmobiliario. TOMADO DE INMOCLICK.COM.ARTodas las oSUSTRAIDO DE INMOCLICK.COM.ARperaciones inmoTOMADO DE INMOCLICK.COM.ARbiliarias soCOPIADO DE INMOCLICK.COM.ARn objeto deSUSTRAIDO DE INMOCLICK.COM.AR intermediación y coCOPIADO DE INMOCLICK.COM.ARnclusión por partVEA ESTA PUBLICACION ACTUALIZADA EN INMOCLICK.COM.ARe del corredorPUBLICACION DE INMOCLICK.COM.AR público inmobiliPUBLICACION DE INMOCLICK.COM.ARario colegiado a caTOMADO DE INMOCLICK.COM.ARrgo de la publCONTENIDO DE INMOCLICK.COM.ARicación, cuyoSUSTRAIDO DE INMOCLICK.COM.ARs datos se exhibSUSTRAIDO DE INMOCLICK.COM.ARen en la preseCOPIADO DE INMOCLICK.COM.ARnte. La prTOMADO DE INMOCLICK.COM.AResente pubCONTENIDO DE INMOCLICK.COM.ARlicación describeCONTENIDO PROPIEDAD DE INMOCLICK.COM.AR las característicPUBLICACION DE INMOCLICK.COM.ARas esencialesCONTENIDO DE INMOCLICK.COM.AR del inmueble, CONTENIDO DE INMOCLICK.COM.ARdebiéndose consuCONTENIDO PROPIEDAD DE INMOCLICK.COM.ARltar al corrVEA ESTA PUBLICACION ACTUALIZADA EN INMOCLICK.COM.ARedor público inCONTENIDO DE INMOCLICK.COM.ARmobiliario responsabVEA ESTA PUBLICACION ACTUALIZADA EN INMOCLICK.COM.ARle de la operación VEA ESTA PUBLICACION ACTUALIZADA EN INMOCLICK.COM.ARpor la eventuaCOPIADO DE INMOCLICK.COM.ARl actualizCOPIADO DE INMOCLICK.COM.ARación de lasCOPIADO DE INMOCLICK.COM.AR medidas, dVEA ESTA PUBLICACION ACTUALIZADA EN INMOCLICK.COM.ARescripciones arquVEA ESTA PUBLICACION ACTUALIZADA EN INMOCLICK.COM.ARitectónicas y funcTOMADO DE INMOCLICK.COM.ARionales, vPUBLICACION DE INMOCLICK.COM.ARalores de expenCOPIADO DE INMOCLICK.COM.ARsas, servicios, TOMADO DE INMOCLICK.COM.ARimpuestos, preciosVEA ESTA PUBLICACION ACTUALIZADA EN INMOCLICK.COM.AR y demás informacVEA ESTA PUBLICACION ACTUALIZADA EN INMOCLICK.COM.ARión, cuyos TOMADO DE INMOCLICK.COM.ARvalores son apCOPIADO DE INMOCLICK.COM.ARroximados.
El
CONTENIDO DE INMOCLICK.COM.AR inmueble TOMADO DE INMOCLICK.COM.ARno es accesibVEA ESTA PUBLICACION ACTUALIZADA EN INMOCLICK.COM.ARle para persoPUBLICACION DE INMOCLICK.COM.ARnas con discapacidaSUSTRAIDO DE INMOCLICK.COM.ARdes físicas.
Compr
COPIADO DE INMOCLICK.COM.ARá la casa que querCONTENIDO PROPIEDAD DE INMOCLICK.COM.ARés! No la que pCOPIADO DE INMOCLICK.COM.ARodés. Accedé PUBLICACION DE INMOCLICK.COM.ARa un préstCONTENIDO PROPIEDAD DE INMOCLICK.COM.ARamo por hastTOMADO DE INMOCLICK.COM.ARa el 30% del vPUBLICACION DE INMOCLICK.COM.ARalor de esta propiedTOMADO DE INMOCLICK.COM.ARad. Simulá tTOMADO DE INMOCLICK.COM.ARu cuota en Lendar lSUSTRAIDO DE INMOCLICK.COM.ARendar.com.arTOMADO DE INMOCLICK.COM.AR


Datos de la propiedad

  • ID#
    90484-433
  • Tipo de construcción
    P H
  • Condición
    Venta
  • Superficie Total m2
    252
  • Dormitorios
    4
  • Superficie Cubierta m2
    205
  • Baños
    3

Ubicación

Humboldt 1900

Avisos similares